Ямницька ОТГ перебуває на шляху невпинного розвитку, де гармоніюють нові інфраструктурні рішення з правильними підходами, сучасні технології з безпекою та екологією. Громада формує себе і потребує публічного простору, соціального простору, який був би відкритим і доступним для всіх. Публічні простори створюються і утримуються для громадян. Вони належать громадськості, служать на благо суспільства, сприяють суспільній згуртованості. Виховують правильне розуміння відпочинку та вміння проводити свій вільний час.
Успішні публічні простори в громаді – це ті, які приваблюють людей; місця, де проходить активне соціальне життя, відбувається спілкування, розвиток та культурний обмін . Якщо публічний простір добре виконує свої функції, то він стає «живою сценою», повною активності та позитиву, на якій протікає наше життя. В іншому випадку – ці місця порожніють, стають не естетичними, не цікавими та деколи навіть небезпечними.
ПУБЛІЧНИЙ ПРОСТІР
Керівництво громади при формуванні публічного простору опирається на принципи: доступність, комфорт і безпека, багатофункціональність, естетика, соціалізація. Центр громади і села Ямниця формується комплексом об’єктів: школа, церква, адміністративна будівля, лікарська амбулаторія і кілька меморіалів. Проте головним елементом центральної частини мала б бути власне площа. Відповідно пропонується використання існуючої ділянки поруч з школою, як центральної частини публічного простору.
Передбачається створити дві смуги озеленення з квітниками та деревами, лавки та малі архітектурні форми, паркінг для авто тощо.
Площа виконуватиме одночасно 3 функції: повсякденна (для прогулянок і відпочинку), святкова (для зборів, концертів), тематична (проведення ярмарки, виставок тощо).
Сподіваємося, що новий публічний простір стане не просто центром громади, а місцем де люди забувають всі негативи, де переважає ентузіазм, радість, спокій та любов.
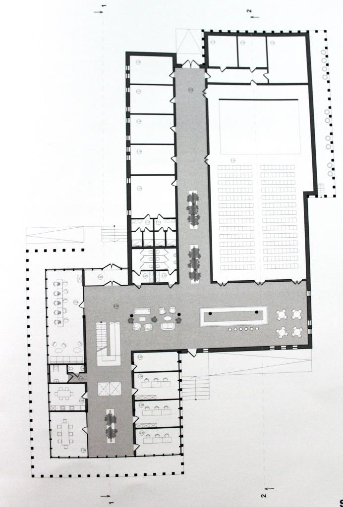
АДМІНІСТРАТИВНО-КУЛЬТУРНИЙ КОМПЛЕКС
Якісним елементом управлінської діяльності органів місцевого самоврядування є ефективність та можливість отримати повний спектр послуг. Керівництво громади прагне, щоб процес надання прозорих, якісних і повних послуг населенню був доступним, зручним і своєчасним. Цей процес визначає рівень довіри та взаємодії громади і влади та слугує імпульсом для успішного здійснення реформи децентралізації. З огляду на це, виникає потреба в новому адміністративному центрі, який було б поєднано з культурним закладом.
Новий адміністративно-культурний комплекс планується розташувати на ділянці біля провулка Залізничний мікрорайону Бангладеш. По периметру комплексу сформовано зелений простір з мережею пішохідних зв’язків, неглибокою водоймою, автостоянкою та сквером з місцями для відпочинку.
Власне будівля складається з трьох архітектурних зон:
1) адміністративна частина – 2 поверхи, ЦНАП (53,51 м.кв.), кабінети та відділи (208,24 м.кв.), 2 конференц-зали (80,62 м.кв.), допоміжні приміщення (134,87 м.кв.);
2) зал для виступів (338,87 м.кв.) та допоміжними приміщеннями (88,78 м.кв.);
3) вхідний хол-рецепція (зона очікування, кафе, виставково-експозиційна зона) – 316,31 м.кв..
Основні техніко-економічні показники:
- Площа ділянки 1,7 га
- Площа забудови 1647,73 м.кв.
- Площа мощення 4855, 87 м.кв.
Керівництво громади прийме до уваги всі пропозиції, побажання та зауваження.





















